Wednesday, February 6, 2013

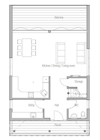
Affordable Home Plan CH191

Affordable Home Plan CH191 from Concepthome.com

Affordable home with low cost-to-build
Suitable to a small lot
3 bedrooms and 2 living areas
Contemporary modern architecture
Low mortgage costs

Cost to Build: from $ 110 000

Affordable House Design

Affordable Home Design

Contemporary Affordable Home

Modern Affordable Home

Affordable Home Plan

Affordable House Plan