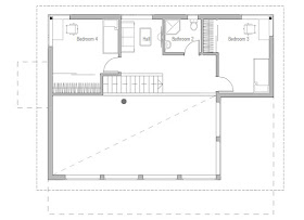
Affordable home with simple shapes and lines. Suitable to a small lot. House plan with four bedrooms and two living areas. Economical to build and maintain. Is possible to build with low budget and small bank loan.
Cost to Build: from $ 140 000
More Affordable House Plans you can find at ConceptHome.com website.





